Berichtsvorlage - 0537/2019
Grunddaten
- Betreff:
-
Westside Hbf - Sachstand und weiteres Vorgehen
- Status:
- öffentlich (Vorlage abgeschlossen)
- Vorlageart:
- Berichtsvorlage
- Federführend:
- VB5/P - Projektmanagement
- Bearbeitung:
- Holger Klinkmann
- Beteiligt:
- FB60 - Verkehr, Immobilien, Bauverwaltung und Wohnen; FB61 - Stadtentwicklung, -planung und Bauordnung; FB69 - Umweltamt; HAGEN.AGENTUR GmbH
Beratungsfolge
| Status | Datum | Gremium | Beschluss | NA |
|---|---|---|---|---|
|
●
Erledigt
|
|
Bezirksvertretung Hagen-Mitte
|
Anhörung
|
|
|
|
18.06.2019
| |||
|
●
Erledigt
|
|
Stadtentwicklungsausschuss
|
Vorberatung
|
|
|
|
02.07.2019
| |||
|
●
Erledigt
|
|
Rat der Stadt Hagen
|
Entscheidung
|
|
|
|
11.07.2019
|
Sachverhalt
Kurzfassung
Die Vorlage beschreibt den Stand der Planungen / Überlegungen zur Entwicklung der städt. Grundstücke westlich des Hauptbahnhofes und erläutert die vorgesehenen Schritte zur Vermarktung der gewerblich nutzbaren Flächen zwischen Hauptbahnhof und Bahnhofshinterfahrung durch die HAGENagentur.
Begründung
1. Verfahrenserläuterung
Die HAGENagentur hat aufgrund des bestehenden Geschäftsbesorgungsvertrages im Auftrag der Stadt Hagen im vergangenen Jahr die städtischen Flächen zwischen dem Hagener Hauptbahnhof und der im Bau befindlichen Bahnhofshinterfahrung, hier als Westside Hbf bezeichnet, überregional angeboten. Dabei wurden Kontakte zu einer Reihe von Projektentwicklern bzw. Investoren hergestellt, die ein grundsätzliches Interesse an der Entwicklung der Flächen bekundet haben. Im Weiteren ist folgendes Verfahren zur Vermarktung der Flächen vorgesehen:
- Die Westside Hbf (ca. 26.000 m² abzüglich Verkehrs- und Böschungsflächen, Leitungstrassen usw.) soll exklusiv durch einen Projektentwickler / Investor entwickelt werden.
- Hierzu werden mit Projektentwicklern / Investoren Werkstattgespräche durchgeführt. Die Gespräche befinden sich aktuell in Vorbereitung und sollen insbesondere dazu dienen, relevante Detailinformationen hinsichtlich der Rahmenbedingungen zu erörtern und ggf. aufkommende Fragestellungen zu klären. Die Rahmenbedingungen der Entwicklung werden unter Ziffer 2 dieser Vorlage aufgeführt.
- Im Anschluss an die Werkstattgespräche wird eine konkrete Bewerbung der Investoren um die Flächenentwicklung, verbunden mit einem Nachweis der wirtschaftlichen Leistungsfähigkeit, erbeten. Wesentliches Auswahlkriterium für die weitere Zusammenarbeit mit dem Investor sind die wirtschaftliche Leistungsfähigkeit des Investors sowie die Zustimmung zum vorgeschlagenen Verfahren einschließlich dessen Finanzierung, insbesondere zur Erstellung von drei städtebaulichen Entwürfen, welche den politischen Gremien der Stadt Hagen vorgelegt werden.
- Die weitere Zusammenarbeit zwischen der HAGENagentur und dem ausgewählten Investor wird durch einen „Letter of Intent“ (LOI), eine Absichtserklärung, geregelt, der die wesentlichen Eckpunkte des gemeinsamen Vorgehens enthält.
- Die Entscheidung über die Vergabe des LOI erfolgt durch die zuständigen politischen Gremien der Stadt.
- Der Investor verpflichtet sich mit dem LOI, die Flächen der Westside Hbf (und nicht nur Teile davon) unter Berücksichtigung der politischen beschlossenen Rahmenplanung einer Entwicklung zuzuführen. Die „Dreiecksfläche“ im Bereich der Mündung Ennepe / Volme wird nicht Gegenstand des LOI.
- Der Investor verpflichtet sich zur Erstellung von drei städtebaulichen Entwürfen, die in der Folge den zuständigen politischen Gremien der Stadt Hagen vorgelegt werden.
- Die HAGENagentur bzw. die Stadt Hagen verpflichten sich, dem Investor ausreichend Zeit für eine Due Diligence-Prüfung, eine sorgfältige Prüfung und Analyse aller Rahmenbedingungen der Entwicklung der Flächen, einzuräumen.
- Erfüllen die vom Investor vorgelegten Planungsentwürfe die städtischen Anforderungen, wird die Stadt Hagen auf der Grundlage des favorisierten Entwürfes und unter Einbeziehung des Investors die Schaffung des entsprechenden Planungsrechtes betreiben.
- Bei Vorliegen des Planungsrechtes, nach der notwendigen politischen Beschlussfassung, verpflichtet sich die HAGENagentur, dem Investor das Eigentum an den Flächen zu übertragen.
- Der Kaufpreis für die Flächen wird bei Abschluss des LOI festgelegt. Der Kaufpreis ist aufgrund der zwischen der Stadt Hagen und dem Verband für Flächenrecycling und Altlastensanierung NRW (AAV) bestehenden öffentlich-rechtlichen Verträge über die Erstellung eines Sanierungsplanes sowie die Sanierung der Flächen auf der Grundlage einer objektiven Verkehrswertermittlung festzustellen.
Die HAGENagentur hat im Zeitraum vom 11.02.2019 – 05.04.2019 ein Interessenbekundungsverfahren durchgeführt. Insgesamt wurden neun Projektentwickler zur Abgabe einer Interessenbekundung mit aussagekräftigen Referenzen aufgefordert. Mit Ablauf der Frist liegen der HAGENagentur insgesamt drei Interessenbekundungen vor (s. nichtöffentliche Ergänzungsvorlage DS 0537-1/2019). Die Unternehmen haben ihrer Interessenbekundung entsprechend aussagekräftige Referenzen beigefügt und sollen zu separaten Werkstattgesprächen eingeladen werden.
2. Planungsrechtliche Vorgaben / Rahmenplanung
a) Bebauungsplan Nr. 8/07 (595) Bahnhofshinterfahrung 2. Abschnitt Weidestraße - Eckeseyer Straße
Mit der Bahnhofshinterfahrung verfolgt die Stadt Hagen das Ziel, die Innenstadt und den Stadtteil Wehringhausen vom Straßendurchgangsverkehr zu entlasten und die innerstädtischen Verkehrsverhältnisse zu verbessern. So soll der Verkehr auf dem Graf-von-Galen-Ring verringert und dadurch sowohl die Trennwirkung als auch die Umweltbelastung reduziert werden (Luftreinhalteplan Hagen). Durch diesen Abschnitt der Bahnhofshinterfahrung besteht die Möglichkeit, brachliegende Gewerbeflächen entlang der Plessenstraße entsprechend den heutigen Verkehrsbedürfnissen zu erschließen, eine
geordnete städtebauliche Entwicklung einzuleiten und eine wesentliche Voraussetzung für Wiedernutzungen zu schaffen.

Der seit dem 15.12.2008 rechtsverbindliche Bebauungsplan beschränkt sich hauptsächlich auf die Verkehrsflächen sowie die begleitenden Grün- und Versorgungsflächen, weil die möglichen baulichen Nutzungen auf den angrenzenden Grundstücken seinerzeit nicht festgelegt werden konnten. Die Bahnhofshinterfahrung ist im Bau und soll im Oktober 2019 fertiggestellt werden.
b) Bebauungsplan Nr. 6/18 (684) – Entwicklung Westside Hbf
Das Bebauungsplanverfahren dient der städtebaulichen Begleitung der Überlegungen der Stadt Hagen im Hinblick auf die Sicherung und Entwicklung der in der Rahmenplanung entwickelten städtebaulichen Konzepte und Entwurfsideen. Zusammengefasst bestehen für den Bereich Westside Hbf entlang der Bahnhofshinterfahrung folgende Ziele:
- Schaffung und Steuerung von neuen Nutzungsimpulsen durch ein lebendiges Stadtquartier mit Magnetwirkung
- Herstellung eines hochwertigen Quartiers mit Dienstleistungsbetrieben und Verklammerung der Bereiche östlich und westlich des Bahnhofsgebäudes
- Bahnhofsnahe Innenstadtentwicklung (Aufwertung und Ergänzung der Innenstadt)
- Stärkung des Hauptbahnhofes durch zusätzliche zentrale Einrichtungen
- Zugangsbereich Tunnel mit städtebaulich anspruchsvoller Gestaltung, qualitätvolle Architektur mit baulicher Dominante
- Schaffung von Zugängen zum Wasser (die Innenstadt an die Ennepe bringen)
- Einbindung in das Radwegenetz
- Ausschluss von Einzelhandel und Vergnügungsstätten

Die Einleitung des Bebauungsplanverfahrens wurde vom Rat der Stadt Hagen am 27.09.2018 einstimmig beschlossen (Vorlage DS 0727/2018).
Die Vorgaben und Rahmenbedingungen, die im Verlauf des Planverfahrens zu berücksichtigen sind, werden durch entsprechende Gutachten detaillierter untersucht und in Festsetzungen für das Planungsrecht formuliert (Lärmschutz, Auswirkungen des Störfallbetriebes, Sanierung des Bodens etc.). Nächster Verfahrensschritt ist die Beteiligung der Träger öffentlicher Belange.
c) Bebauungsplan Nr. 5/18 (683) Entwicklung Mündungsbereich Ennepe – Volme
Ziel des Bebauungsplanes Nr. 5/18 (683) Entwicklung Mündungsbereich Ennepe – Volme ist die Sicherung des Grünbereichs an der Mündung der Ennepe in die Volme. Im Detail sind zu nennen:
- Steuerung von neuen Nutzungen und Nutzungsimpulsen am Zusammenfluss der Ennepe und Volme
- Steuerung der Nachnutzung des denkmalgeschützten Gebäudes Plessenstraße 20 (ehem. Schraubenfabrik)
- Gewährleistung der Erlebbar- und Zugänglichkeit der Ennepe und der Volme für die Öffentlichkeit
- Erweiterung der grünen Kulisse "Philippshöhe" am Zusammenfluss der Volme und Ennepe mit der Funktion eines innenstadtnahen Erholungsbereichs
- Einbindung in das Radwegenetz

Die Einleitung des Bebauungsplanverfahrens wurde vom Rat der Stadt Hagen am 27.09.2018 einstimmig beschlossen (Vorlage DS 0763/2018).
Die so genannte „Dreiecksfläche“ zwischen Ennepe und Volme steht in Privateigentum. Die Grundstückseigentümerin hat einem Verkauf zugestimmt. Der Rat hat den Erwerb am 23.05.2019 beschlossen (Vorlage DS 0318/2019).
Die Flächen im Bereich des Bebauungsplanes Nr. 5/18 werden nicht Gegenstand des abzuschließenden Letters of Intent.
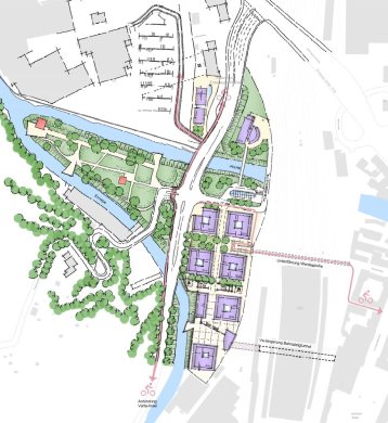
d) Rahmenplanung Westside Hbf
Die für die Westside Hbf entwickelten Varianten einer Rahmenplanung wurden in den Verwaltungsvorlagen DS 0492/2012 und DS 1139/2013 vorgestellt. Der Stadtentwicklungsausschuss beauftragte nach einem entsprechenden Empfehlungsbeschluss der Bezirksvertretung Hagen-Mitte am 10.12.2013 einstimmig die Verwaltung, die Variante 1.1 der weiteren Entwicklung zugrunde zu legen. Diese Variante sieht vor, zwischen der Innenstadt und den westlich des Hauptbahnhofes gelegenen Flächen eine städtebauliche Verbindung mit dem Ziel zu schaffen, die Westside Hbf zu einem neuen, zentralen Dienstleistungsquartier zu entwickeln.

Im März 2018 wurden die politischen Gremien über den Sachstand und über die Fortschreibung der Rahmenplanung unterrichtet. Die in der Vorlage DS 0164/2018 vorgestellte fortgeschriebene Rahmenplanung wurde vom Stadtentwicklungsausschuss am 20.03.2018 mit dem Zusatz beschlossen, die vorgesehenen Nutzungen weiter zu entwickeln und zu qualifizieren.
In der Fortschreibung der Rahmenplanung entwickelt sich die Leitidee der Landschafts- und der Stadtvernetzung. Das Ziel des städtebaulichen Entwurfs ist es, die Innenstadt wieder an die Ennepe und an die Volme zu bringen und ein neues, lebendiges westliches Dienstleistungsquartier zu schaffen und damit die Hagener Innenstadt weiter an die Ennepe zu entwickeln. Erschlossen durch die neue Bahnhofshinterfahrung bietet sich der Bereich zwischen Bahnhofshinterfahrung und Hauptbahnhof für eine hochwertige Nutzung als Dienstleistungsstandort an. Der Zusammenfluss von Ennepe und Volme wird zu einem markanten Ort im Stadtgefüge. Die Innenstadt erfährt in westlicher Richtung eine Erweiterung und Ergänzung bis zum Ufer der Ennepe. Es wird eine Vernetzung der Funktionen und Nutzungen zwischen dem Bereich westlich und östlich des Hauptbahnhofes angestrebt.
Nutzungen
Nach dem erklärten Ziel, der Verklammerung der Bereiche westlich und östlich des Hauptbahnhofs, sollen die Grundstücke typische Citynutzungen aufweisen. Dem Erosionsprozess, der im Bahnhofsviertel eingesetzt hat, soll entgegengewirkt werden. Eine Erweiterung des Flächenangebotes über die Bahntrasse hinaus ist dazu geeignet, dass größere Dienstleistungsunternehmen dort investieren. Es ist davon auszugehen, dass der Lagevorteil dieser Flächen, bei einer optimalen Herrichtung und Vermarktung, einen wichtigen Impuls für die Revitalisierung des Bahnhofsviertels auslösen würde. Die zwei Quartiere beidseitig des Bahnhofes würden sich gegenseitig bereichern und zu Synergieeffekten führen. Es soll ein hochwertiges Quartier mit Dienstleistungsbetrieben entstehen (4 bis 5 Geschosse; evtl. ein mehrgeschossiger Baukörper, um städtebauliche Akzente zu setzen).
Gestaltung
Durch den Bau der Bahnhofshinterfahrung wird der Bereich „hinter dem Bahnhof“ zukünftig zur Schauseite der Innenstadt. Um die impulsstarken Ziele zu erreichen und der einmaligen Standortsituation gerecht zu werden, ist es von großer Bedeutung, den Städtebau, welcher die urbane Qualität des neuen Stadtquartiers an der Ennepe und an der Bahnhofshinterfahrung prägt, mit hohem Qualitätsanspruch umzusetzen – städtebaulich wie architektonisch. Seitens des Fachbereiches Stadtentwicklung, -planung und Bauordnung wird empfohlen, einen Gestaltungsleitfaden für die Architektur und den Freiraum durch den zukünftigen Investor erstellen zu lassen und mit der Stadt Hagen abzustimmen.
Restriktionen
Unmittelbar südlich an den Entwicklungsbereich "Westside Hbf" grenzt ein Betrieb an, der unter die Störfallverordnung der Europäischen Union fällt. Im Betriebsbereich wird mit verschiedenen Stoffen umgegangen, die unter die sog. Seveso-III-Richtlinie fallen. Diese Richtlinie hat zum Ziel, dass zwischen Betriebsbereichen und schutzbedürftigen Gebieten, wie Wohngebieten, öffentlich genutzten Gebäuden und Gebieten, Erholungsgebieten und soweit möglich, Hauptverkehrswegen langfristig ein angemessener Abstand gewahrt bleibt.
Auf der Basis des § 50 BImSchG bzw. Art. 13 der Seveso-III-Richtlinie wurde der angemessene Abstand gutachterlich durch einen beauftragten Sachverständigen mit 525 m im Umfeld des Betriebsbereiches ermittelt.
Für Ansiedlungen innerhalb des angemessenen Abstandes ist grundsätzlich zwischen schutzbedürftiger Nutzung und nicht schutzbedürftiger Nutzung zu unterscheiden. Die Definitionen schutzbedürftiger Nutzungen sind innerhalb Art. 13 Abs. 1 der Seveso-III-Richtlinie aufgeführt und lassen sich zusammenfassen als Wohnnutzungen sowie Nutzungen, die durch eine nicht näher definierbare Öffentlichkeit frequentiert werden.
Im Rahmen des Bebauungsplanverfahrens ist abzuwägen, welche Nutzungen innerhalb des angemessenen Abstandes von 525 m konkret zugelassen werden können.

Die Altlastenflächen der Westside Hbf wurden aufgrund des erstellten und am 19.08.2015 von der Unteren Bodenschutzbehörde für verbindlich erklärten Sanierungsplans im ersten Meter für eine gewerbliche Nutzung saniert. Die Sanierung wurde über den Verband für Flächenrecycling und Altlastensanierung NRW (AAV) gefördert. Der Abschlussbericht liegt noch nicht vor. Die Vorgaben des Sanierungsplanes sind bei der Bebauung zu beachten und zu erfüllen.
Grün- und Freiraum
Die Innenstadt weist eine hohe bauliche Dichte auf. Die öffentlichen Freiflächen im Bahnhofsviertel sind weitestgehend versiegelt, mit negativen Auswirkungen auf das Kleinklima. Die städtischen Flächen westlich des Hauptbahnhofes können zur Verbesserung der Stadtökologie beitragen, sofern sie nicht ausnahmslos einer Bebauung zugeführt werden. Entlang der beiden Flüsse sind daher großzügige, unversiegelt bleibende Böschungsbereiche vorgesehen. Zugänge zu den Flüssen sind vorzusehen.
e) Erschließung
Die städtischen Flächen westlich des Hauptbahnhofes liegen direkt an der Bahnhofshinterfahrung. Die äußere Erschließung der Grundstücke erfolgt über die nach Süden zu verlängernde Plessenstraße, die durch einen Knoten mit der Bahnhofshinterfahrung verbunden wird. Die Kapazität der Erschließung ist auf 6.000 Kfz / 24 Std. (LKW-Anteil max. 7,5 %) beschränkt.
Zwischen der Westside Hbf und dem Graf-von-Galen-Ring wird es keine Verbindung für den motorisierten Individualverkehr geben. Die Verzahnung der beiden Bereiche erfolgt fußläufig und für den Radverkehr, zum einen über die Unterführung Werdestraße, die dafür attraktiver gestaltet und ausgebaut werden muss. Zum anderen soll durch eine Verlängerung der Personenunterführung des Hauptbahnhofes eine weitere Fußgängerverbindung angeboten werden. Um Barrierefreiheit zu gewährleisten, muss das neue Quartier westlich des Hauptbahnhofes hier zusätzlich zu einer Treppenanlage auch mit Rampen bzw. behindertengerechten Aufzügen ausgestattet werden.
Die innere Erschließung der Westside Hbf (Straßen, Wege, Plätze) obliegt dem Investor / Projektentwickler.
Revitalisierung der Unterführung Werdestraße
Ziel ist es, die Unterführung nach Fertigstellung der Bahnhofshinterfahrung zu revitalisieren, um eine Fuß- und Radwegeverbindung zwischen Hauptbahnhof und Westside Hbf zu schaffen. Hier sind entsprechende bauliche als auch gestalterische Maßnahmen zur Vermeidung von Angsträumen erforderlich. Die Sicherheit im öffentlichen Raum kann durch verschiedene Maßnahmen geschaffen werden. Denkbar sind z. B. die Belebung der Unterführung (Empfang), eine durchgehende überdurchschnittliche Beleuchtung und künstlerische Gestaltung der Wände, eine gute Einsicht (Übersichtlichkeit der Unterführung) sowie die Schaffung von Blickbeziehungen mit guten Orientierungsmöglichkeiten. Auch die Schließung der Seitenbereiche (keine Versteckmöglichkeiten) und Herrichtung von Lichtschächten (Umsetzung ist im Bestand zu prüfen) sowie neue Bodenbeläge mit hellen Materialien ggf. mit Lichtleisten/Streifen, LED-Technik, Reflektoren und die bauliche wie auch markierungstechnische Trennung der beiden Verkehrsarten (Fuß- und Radweg) können zu einer erhöhten Sicherheit im öffentlichen Raum führen.
Mit der Deutschen Bahn AG werden derzeit Gespräche über die notwendigen vertraglichen Regelungen zur Nutzung der Unterführung geführt. Durch Grundstückskaufvertrag hat die Stadt die Zuwegungsflächen zwischen der Straße „Am Hauptbahnhof“ und dem östlichen Eingang der Unterführung bereits erworben.
Verlängerung der Personenunterführung Hbf
Die Verlängerung der ca. 115 m langen Personenunterführung unterhalb der Gleisanlagen des Hauptbahnhofes um ca. 40 m hin zur Westside Hbf wurde 2016 durch ein Ingenieurbüro untersucht. Die erstellte Studie belegt die grundsätzliche Machbarkeit und ermittelt die Baukosten, prognostiziert auf das Jahr 2019, mit geschätzt rd. 7 Mio. € netto. Angenommen wurde eine Steigerung der Baukosten um 2 % / Jahr. Aufgrund der tatsächlichen Entwicklung im Bausektor muss jedoch von einer deutlich höheren Steigerung ausgegangen werden.
Die Deutsche Bahn AG hat ihre Bereitschaft signalisiert, der Stadt Hagen die Durchführung der Baumaßnahme auf Bahngelände zu gestatten. Hierzu sind die notwendigen vertraglichen Regelungen zwischen der DB AG und der Stadt Hagen zu treffen.
Die Finanzierung der Maßnahme ist allerdings nicht gesichert. In Gesprächen mit Vertretern des zuständigen Ministeriums und der Bezirksregierung wurde deutlich, dass die Voraussetzungen für die Gewährung von Städtebauförderungsmitteln nicht gegeben sind. Eine erste Abstimmung mit dem Verkehrsverbund Rhein-Ruhr als Bewilligungsbehörde für Infrastrukturmittel ÖPNV hat ergeben, dass evtl. eine Förderung von ca. 60 % der auf die ÖPNV-Nutzer entfallenden Nettokosten in Frage kommen könnte.
Inklusion von Menschen mit Behinderung
Belange von Menschen mit Behinderung (Bitte ankreuzen und Teile, die nicht benötigt werden löschen.)
| |
x | sind nicht betroffen |
Auswirkungen
Finanzielle Auswirkungen
(Bitte ankreuzen und Teile, die nicht benötigt werden löschen.)
x | Es entstehen keine finanziellen und personellen Auswirkungen |
gez. Erik O. Schulz Oberbürgermeister | gez. Henning Keune Technischer Beigeordneter |
|
gez. Christoph Gerbersmann Erster Beigeordneter und Stadtkämmerer |
Anlagen
| Nr. | Name | Original | Status | Größe | |
|---|---|---|---|---|---|
|
1
|
(wie Dokument)
|
366,2 kB
|

11.07.2019 - Rat der Stadt Hagen - geändert beschlossen
1. Beschlussvorschlag der Fraktionen CDU, SPD, Bündnis 90 / Die Grünen, Hagen Aktiv, FDP, Die Linke., Bürger für Hohenlimburg / Piraten Hagen
1. Der Rat der Stadt Hagen richtet auf Wunsch des Stadtentwicklungsausschusses eine adhoc-Kommission des Stadtentwicklungsausschusses zur Begleitung und inhaltlichen Steuerung des weiteren Verfahrens zur Westside HBF ein.
2. Die Kommission setzt sich zusammen aus
a. je zwei Mitgliedern von Fraktionen größer 10 Mitglieder
b. je einem Mitglied von Fraktionen kleiner 10 Mitglieder
Abstimmungsergebnis:
X | Einstimmig beschlossen |
2. Beschluss:
Der Bericht der Verwaltung wird zur Kenntnis genommen.
Abstimmungsergebnis:
X | Zur Kenntnis genommen |